1 / 8 photos
About This Property
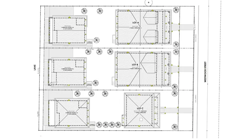
Exceptional development opportunity in a prime Coquitlam location! This large property has been subdivided into three lots — 910, 914, and 918 Westwood Street — with drawings complete and building permits in progress. Ideal for builders or investors seeking a ready-to-go project in a growing neighbourhood. Offering a rare chance to secure a multi-lot development site with excellent future potential. City allows development for approx 3,100sf of living space, including a 1 bedroom couch house and 2 bedroom basement suite for lot 918. Selling As is Where Is.
Features
Rear Access
Property Details
MLS NumberR3061467
Lot Size4,067.9 sqft
Heating[object Object]
Days on Market152
StatusActive
Listed ByOakwyn Realty Ltd.
Mortgage Calculator
Estimated Monthly Payment
—