$2,888,000

817 W 60TH AVENUE

Vancouver BC V6P 2A2 - Marpole
5 bd
5 ba
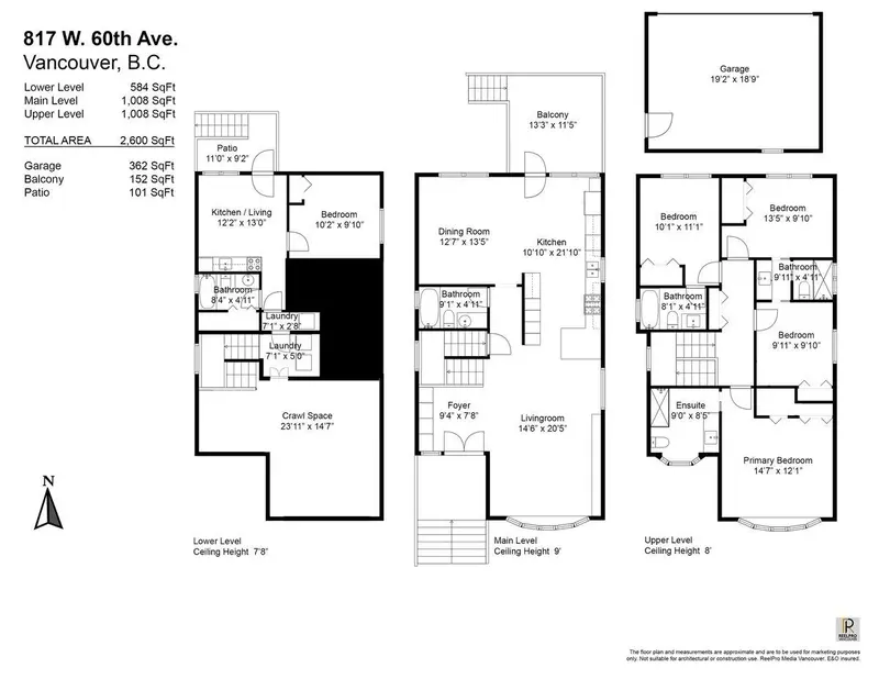
2,600 sqft
Built 1997

About This Property

5 bedroom, 5 bathroom home in Marpole neighbourhood of Vancouver. Stunningly renovated in 2023 with modern and contemporary colour palette and design. Open concept, luxury bathrooms, sleek media wall with fireplace, foyer organization, this home is carefully designed for all your wants and needs. Bonus 1 bedroom suite with a separate entrance and laundry! A great mortgage helper or in-law suite for your extended families. Located nearby amazing schools catchments, golf course, parks, and shopping centres! Give us a call today to view this home.

Features

Balcony
Private Yard
Detached

Property Details

MLS NumberR3105103
Property TypeSingle Family Residence
Bedrooms5
Bathrooms5
Square Feet2,600
Lot Size4,286.7 sqft
Year Built1997
Parking Spaces2
HeatingElectric, Radiant
Days on Market1
StatusActive
Listed ByGrand Central Realty

Mortgage Calculator

Estimated Monthly Payment
Partner Rates Available Contact us for preferred mortgage rates

Location

Book a Showing