$569,898

202 1488 MERKLIN STREET

White Rock BC V4B 4C3 - White Rock
Part of Brockton Place →
2 bd
2 ba
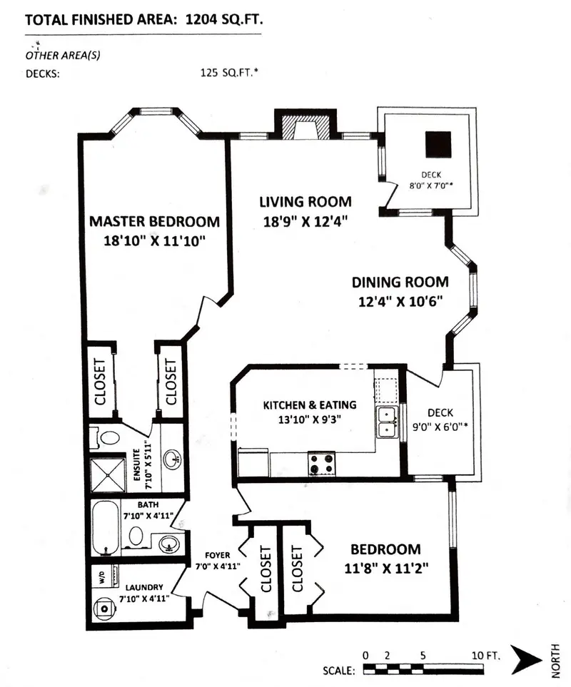
1,210 sqft
Built 1990

About This Property

Welcome to Brockton Place! This immaculate ONE OF A KIND remodelled 1,200 sq ft corner in a well-run, sought-after community of just 17 residences. Minutes from White Rock Beach, this bright and spacious 2-bed, 2-bath layout is filled with natural light and features a full utility room with in-suite laundry. Enjoy summer breezes from two private balconies off the living and dining rooms. Extensive updates include a $35K kitchen remodel with quartz counters, new LG appliances and under-cabinet lighting, luxury vinyl flooring, crown mouldings, Hunter Douglas blinds, LED lighting, custom closets, updated fireplace, new hot water tank, heaters, stylish barn doors, baths, and lots more. Steps to elevator, stairs, transit, shops, hospital, and uptown White Rock, everything you need is close by!

Features

Elevator
Guest Suite
Storage
Balcony
Underground

Property Details

MLS NumberR3080352
Property TypeApartment/Condo
Bedrooms2
Bathrooms2
Square Feet1,210
Year Built1990
Parking Spaces1
HeatingBaseboard, Electric
Strata Fee$610.51/mo
Days on Market69
StatusActive
Listed ByOne Percent Realty Ltd.

School Catchment

Elementary White Rock
Secondary Semiahmoo

Mortgage Calculator

Estimated Monthly Payment
Partner Rates Available Contact us for preferred mortgage rates

Location

Book a Showing